ID CP2312279

Apartament lux 4 camere Cotroceni - Eroilor (COMISION ZERO)

Această proprietate nu mai este activă,
te invităm să vizualizezi proprietăți similare

ID CP2312279

485,000 €

Apartament cu 4 camere de vânzare
Cotroceni, Bucuresti
126 mp
2015

RIMO va propune un superb apartament de 4 camere situat in cartierul Cotroceni, in imediata intersectie a Bulevardului Eroilor cu Bulevardul Eroii Sanitari, la doar 5 minute de mers pe jos pana la statia de metrou Eroilor, situat intr-un bloculet boutique inconjurat de vile.

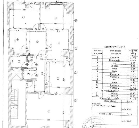
Apartamentul se afla la etajul 1, beneficiaza de o suprafata utila de 126 metri si de 2 balcoane (unul inchis, unul deschis) cu o suprafata totala de 16 metri.

Compartimentarea total decomandata, cu multiple spatii de depozitare (bucataria beneficiaza de o camara, exista o debara, pe holul principal exista un dressing mare). Se inchiriaza exact ca in poze, fiind pretabil pentru o familie ce isi doreste sa fie aproape de multiplele puncte de interes aferente zonei.

Inclus in pret este si un loc de parcare situat la subteran si o boxa de 8 metri; imobilul are in dotare si lift, astfel din subteran se poate folosi liftul.

Pentru mai multe detalii, va stam oricand la dispozitie!

Citește mai mult

  • Tip apartament
    Apartament
  • Compartimentare
    Decomandat
  • Număr camere
    4
  • Dormitoare
    3
  • Număr bucătării
    1
  • Număr băi
    2
  • Etaj
    1
  • Suprafață utilă
    126 mp
  • Suprafață construită
    141 mp
  • Suprafață totală
    141 mp
  • Disponibilitate
    Imediat
  • Confort
    Lux
  • Stare interior
    Ultrafinisat
  • Anul finisării
    2024
  • Număr balcoane
    2
  • Număr locuri parcare
    1
  • Imobil
    Bloc de apart.
  • Stadiu construcție
    Finalizată
  • An construcție
    2015
  • Construcție nouă
    Da
  • Tip construcție
    Beton
  • Reabilitat termic
    Da
  • Număr etaje clădire
    2
  • Număr etaje retrase
    1

Facilități

Apă
Apometre
Bucătărie închisă
Bucătărie mobilată
Bucătărie utilată
Cabină de duș
Cadă
Calorifere
Canalizare
CATV
Centrală proprie
Contor electric
Curent
Faianță
Frigider
Garaj subteran
Gaz
Geamuri termopan
Gresie
Iluminat stradal
Interfon
Internet
Izolație exterioară
Lift
Mașină de spălat rufe
Mijloace de transport în comun
Mobilat complet
Mobilat lux
Parchet laminat
Străzi asfaltate
Supraveghere video
Telecomandă poartă garaj
Telefon
Ușă intrare metal
Uși interior lemn
Vedere panoramică
Vopsea lavabilă
Necesare:

Site-ul nu poate funcționa corect fără aceste cookie-uri. Vezi cookie-urile

Statistică:

Strângem statistici anonime despre voi, vizitatorii unici, pentru a vă îmbunătăți experiența dumneavoastră. Vezi cookie-urile

Marketing:

Pentru a ne promova mai eficient serviciile noastre, folosim cookies pentru a vă identifica și a vă oferi proprietăți și servicii personalizate. Vezi cookie-urile

Acest site folosește cookies, află detalii. Alege ce tipuri de cookies dorești să permitem: